Property Type
House, House
Parking
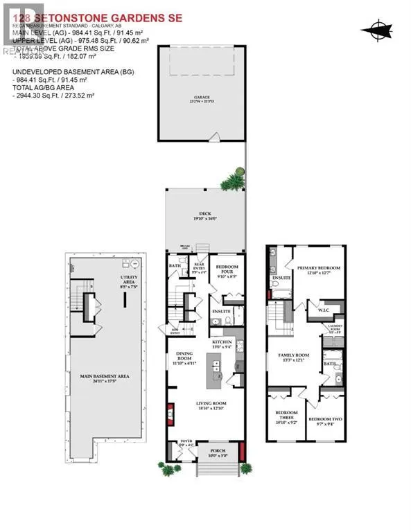
Garage: Yes, 2 parking
MLS #
A2266657
Size
1960 sqft
Basement
Unfinished, Full (Unfinished)
Listed on
-
Lot size
-
Tax
-
Days on Market
-
Year Built
2023
Maintenance Fee
-
